大阪|マンションのスケルトンリフォームならザワン TOP > 「リビング」の施工を解説
スケルトンリフォーム(リビング編)
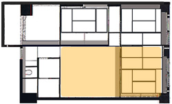
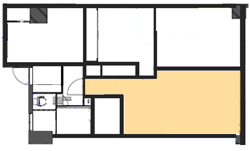
大阪のザワンが手がけたスケルトンリフォーム(リビング編)について、施工前・後の設計図面を比較してご紹介します。お客様のご要望にお応えしたほか、リフォームのプロとしてプラスαのご提案もさせていただきました。
リフォーム前後で改善点を比較


部位別に分析


問題点
敷居が劣化して障子が開閉しづらい
改善後
障子の敷居を交換。少しの力でスムーズに開閉できるよう、レールにアルミを入れました。横の枠と鴨居にはシートを貼り、新品同様の見た目に仕上げました。部分的なリフォームでは敷居のリフォームはできませんが、スケルトンリフォームなら可能です


問題点
二枚引きのふすまを外しても袖壁が残るので、開放感がない。また5cmの段差があり、転倒のおそれがある
改善後
キッチン・ダイニングとリビングの間のふすまをなくし、広々とした連続性のある空間ができました
その他の改善ポイント
- 押し入れの位置が偏っているので、収納が不便
→キッチン・ダイニングとリビングをつなげて、押し入れは和室と寝室へ移動


















